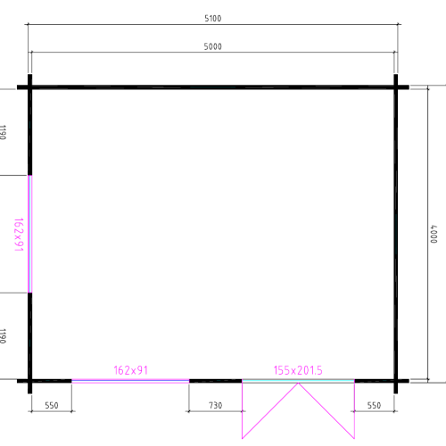
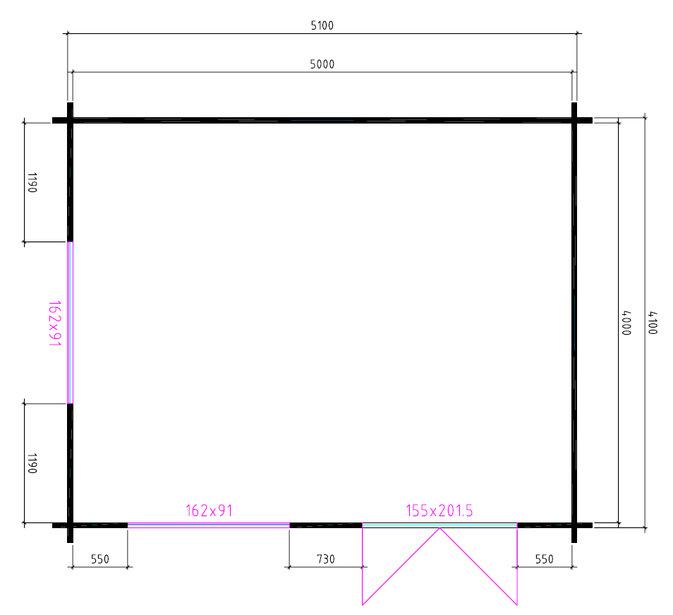
Home > Complete 50'ers > 5×4
2x Dubbel draaikiep raam
1x Dubbele deur
Dit tuinhuis gaat samen met de volgende accessoires:
Impregneren is een voorbehandeling waarbij het hout verduurzaamd en beter beschermd wordt tegen schimmels en insecten. Weersinvloeden zoals zon en regen vallen hier buiten.
Coaten houdt in dat de blokhut een 2-laagse verf behandeling krijgt. Bij blokhutten met een zijluifel worden tevens de zichtbare wanden onder de luifel gecoat. De dakbalken en dakplanken worden niet gecoat.
Coaten zorgt voor een extra beschermlaag en een mooie afwerking. Beschikbaar in diverse kleuren en afwerkingen voor zowel binnen- als buitenzijde.
Verkrijgbaar in geïmpregneerd vurenhout of Kunststof.
Bij 28 & 40mm wanddikte: 45 x 90mm.
Bij 50 & 70mm wanddikte: 45 x 114mm.
Verkrijgbaar in geïmpregneerd vurenhout of kunststof.
Bij 28 & 40mm wanddikte: 45 x 90mm.
Bij 50 & 70mm wanddikte: 45 x 114mm.
Vraag hier eenvoudig een offerte aan voor jouw tuinhuis. Vul je wensen in en ontvang snel een duidelijke, vrijblijvende prijsopgave. Zo weet je precies waar je aan toe bent en kunnen we direct met je meedenken over de beste oplossing.
Tuinhuis op maat laten maken én plaatsen? Neem contact met ons op!