4×3+2Z

Met de Complete 50’ers kies je voor een ruim en veelzijdig tuinhuis. Je hebt alle ruimte om te ontspannen, spullen op te bergen of een eigen hobbyplek te creëren. Dankzij de stevige constructie en strakke afwerking geniet je jarenlang van een stijlvol en praktisch tuinhuis dat perfect aansluit bij jouw wensen.
Vanaf € 7.068
4×3+2Z
Breedte
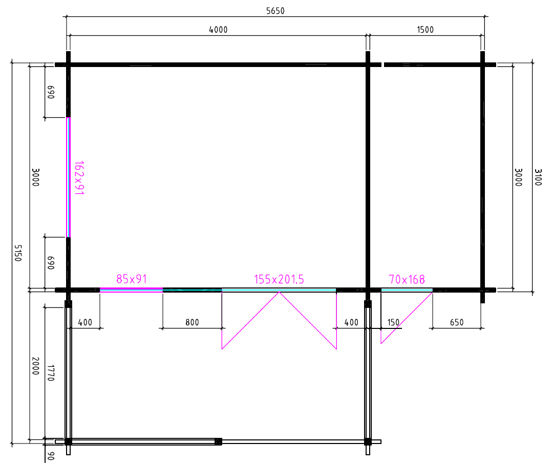
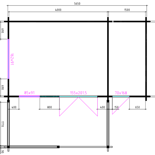
565 cm
Diepte
515 cm
Oppervlakte
25.92 m²
Wanddikte
50 mm
Zijwandhoogte
208 cm
Nokhoogte
265 cm
Type dak
Zadeldak
Glas
BC-kwaliteit
Ramen & deuren

1x Dubbel draaikiep raam
1x Enkel draaikiep raam
1x Dubbele deur
1x Zijaanbouwdeur

Houtsoort
Noord-Europees vuren kwaliteitshout
Mogelijke accessoires

Dit tuinhuis gaat samen met de volgende accessoires:

Wij bouwen het tuinhuis bij jou op locatie op.

Impregneren is een voorbehandeling waarbij het hout verduurzaamd en beter beschermd wordt tegen schimmels en insecten. Weersinvloeden zoals zon en regen vallen hier buiten.

Coaten houdt in dat de blokhut een 2-laagse verf behandeling krijgt. Bij blokhutten met een zijluifel worden tevens de zichtbare wanden onder de luifel gecoat. De dakbalken en dakplanken worden niet gecoat.

Coaten zorgt voor een extra beschermlaag en een mooie afwerking. Beschikbaar in diverse kleuren en afwerkingen voor zowel binnen- als buitenzijde.

Verkrijgbaar in geïmpregneerd vurenhout of Kunststof.
Bij 28 & 40mm wanddikte: 45 x 90mm.
Bij 50 & 70mm wanddikte: 45 x 114mm.

Verkrijgbaar in geïmpregneerd vurenhout of kunststof.
Bij 28 & 40mm wanddikte: 45 x 90mm.
Bij 50 & 70mm wanddikte: 45 x 114mm.

Leverbaar in de kleuren: groen, rood en zwart. Voor het bevestigen van de dakshingles heb je asfaltnagels nodig.
Leverbaar in de kleuren: groen, rood en zwart. Voor het bevestigen van de dakshingles heb je asfaltnagels nodig.
Op basis van cellulose vezels en bitumen. Het uiterlijk van een traditionele dakpan en het lichtgewicht van bitumengolfplaten. Dankzij een exclusief 3-tonen kleursysteem en een aangepast golfprofiel ontstaat bij (eenvoudige plaatsing) het aanzicht van natuurlijke dakpannen. Leverbaar in de kleuren: rood gevlamd, groen gevlamd, zwart, terracotta, classic red en slate grey (leisteen).
Deze PVC dakgootset met afvoer wordt geleverd in de kleuren bruin (10cm brede goot) of grijs (15cm brede goot). De kleur/maat is afhankelijk van de grootte van het dakoppervlak.
Een houten vloer/fundament bestaat uit vloerplanken, geïmpregneerde fundamentbalken en afwerklijsten. Bij 28 en 40mm wanddikte zijn de vloerplanken 20mm dik en bij 50mm wanddikte of dikker zijn de vloerplanken 26mm dik.
De ventilatieroosters zijn geschikt voor alle blokhutten en zorgt voor de benodigde ventilatie. Het binnenrooster is afsluitbaar en gemaakt van kunststof. Het buitenrooster is een vast paneel gemaakt van aluminium.
Offerte aanvragen
Vraag hier vrijblijvend een offerte aan.
Tuinhuis: 4×3+2Z
Opties en accessoires
Contactgegevens
Indienen

Vraag hier een offerte aan

Vraag hier eenvoudig een offerte aan voor jouw tuinhuis. Vul je wensen in en ontvang snel een duidelijke, vrijblijvende prijsopgave. Zo weet je precies waar je aan toe bent en kunnen we direct met je meedenken over de beste oplossing.

Tuinhuis op maat laten maken én plaatsen? Neem contact met ons op!

Kijk ook eens naar deze tuinhuizen